BAMBOO ARCHITECTURE ROBOT [ BAMBOT ]
"For architects, this means rethinking typologies and waste/energy cycles and thinking beyond buildings to fields of technology and local fabrication—to drive ecological and economic sustainability by building active architecture—a project of open source architecture robots—that input Africa's environmental wealth and output not only shelter but also energy, food, water, Internet access and information about how to make and market designed products from raw material." —Africentricity, 2010
Bambots are a series of prototypes in development since 2009, as framed by the Kiosk Culture research conducted in Tema, an industrial new town in Ghana. Bambots are experimental bamboo infrastructures conceived as early-stage species of a new type of living systems in the space between architecture and furniture. We foresee a future wherein architecture is alive and mobile. Bambots are part of an anticipatory research project toward that re-formation of spatial experience: architecture that can sense and interact with people and its environment, not in servitude to human society but as part of an alternative model of collective ecological participation.
These are low-fidelity prototypes made over a few hours to a few days with a handful of makers and youth from the community, with budgets of $0-700.
2009-
Select Prototypes:
- Bamboo Kiosk - Tema, Ghana (2010)
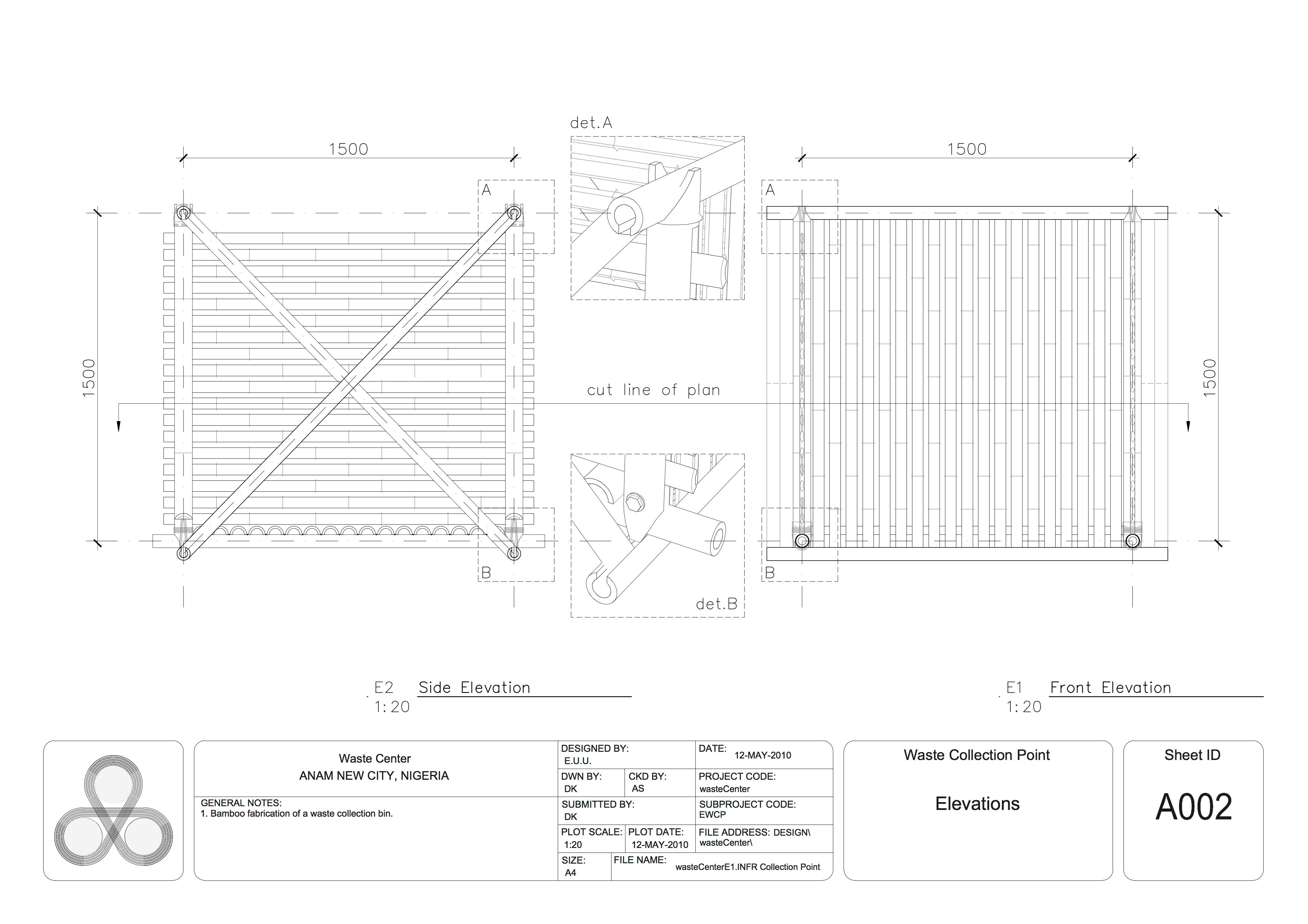
- Bamboo Dumpster - Anam, Nigeria (2011)
- Bamboo Workshops - Anam, Nigeria (2011-2012)
- Bamboo Canopy - Brekuso Hill Station, Ghana (2012)
- Bamboo TV - Chale Wote Festival, Accra, Ghana (2013)
- Otublohum Transponder - Chale Wote Festival, Accra, Ghana (2016)
- Bamboo Lattice Vault - ANO Institute, Accra, Ghana (2016)
- Bambot Fufuzela - MoMA PS1, Queens, New York (2019, unbuilt)
